
型號意義

產品簡介
IHF單級單吸氟塑料合金化工泵,是按國標設計並結合非金屬泵的加工工藝設計而成。泵體采用金屬外殼內襯聚全氟乙丙烯(F46),泵蓋,葉輪均采用金屬嵌件外包氟塑料整體燒結壓製成型,具有耐腐,耐磨,耐高溫,不老化,機械強度高,運轉平穩,結構先進合理,密封性能嚴格可靠,拆卸檢修方便,使用壽命長等優點。廣泛適用於化工,製藥,石油,冶金,冶煉,電力,電鍍,染料,農藥,造紙,食品,紡織等行業,在-85℃~200℃溫度條件下長期輸送任意濃度的硫酸,鹽酸,氫氟酸,硝酸,王水,強堿,強氧化劑,有機溶劑,還原劑等強腐蝕性介質。
結構與特性
IHF單級單吸氟塑料合金化工泵的泵體材質采用金屬外殼內襯聚全氟乙丙烯(F46)、葉輪和泵蓋均采用金屬嵌件外包氟塑料整體燒結壓製成型,軸封采用外裝式波紋管機械密封,靜環選用99.9%氧化鋁陶瓷或炭化矽,動環采用四氟填充材料或炭化矽。其特點是該泵結構先進合理,耐腐蝕強,密封性能嚴密可靠,工作穩定,噪音低,使用壽命長。
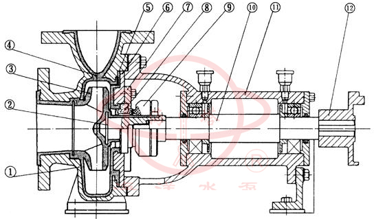
結構特點
![]() |
序號 |
名稱 |
序號 |
名稱 |
1 |
泵體 |
7 |
機封壓蓋 |
|
2 |
葉輪骨架 |
8 |
靜環 |
|
3 |
葉輪 |
9 |
動環 |
|
4 |
泵體襯裏 |
10 |
泵軸 |
|
5 |
泵蓋襯裏 |
11 |
軸承體 |
|
6 |
泵蓋 |
12 |
聯軸器 |
性能參數
型號 |
轉速 |
流量Q |
揚程 |
效率 |
功率 |
必耐汽蝕餘量 |
||
軸功率 |
電機功率 |
|||||||
r/min |
m3/h |
L/s |
m |
% |
KW |
KW |
m |
|
IHF32-25-125 |
2900 |
3.5 5 6.5 |
0.97 1.39 1.8 |
21 20 18 |
40 44 42 |
0.5 0.62 0.76 |
1.5 |
2.3 |
IHF32-25-125A |
2900 |
3.1 4.5 5.8 |
0.06 1.25 1.61 |
17.6 16 14.4 |
38 41 40 |
0.7 0.48 0.57 |
1.1 |
2.3 |
IHF32-25-160 |
2900 |
3.5 5 6.5 |
0.97 1.39 1.8 |
33 32 30 |
34 40 42 |
0.93 1.1 1.26 |
2.2 |
2.3 |
IHF32-25-160A |
2900 |
3.1 4.5 5.8 |
0.86 1.25 1.61 |
29 28 26 |
30 35 36 |
0.81 0.97 1.14 |
1.5 |
2.3 |
IHF40-32-125 |
2900 |
4.4 6.5 8.3 |
1.22 1.8 2.31 |
21 20 18 |
40 45 43 |
0.63 0.79 0.95 |
2.2 |
2.5 |
IHF40-32-125A |
2900 |
3.9 5.6 7.4 |
1.08 1.56 2.06 |
17.6 16 14.4 |
38 42 40 |
0.49 0.58 0.72 |
1.5 |
2.5 |
IHF40-32-160
|
2900 |
4.4 6.5 8.3 |
1.22 1.8 2.31 |
33 32 30 |
34 40 39 |
1.16 1.42 1.71 |
2.2 |
2.5 |
IHF40-32-160A |
2900 |
3.9 5.6 7.4 |
1.08 1.56 2.06 |
29 28 26 |
32 38 37 |
0.96 1.23 1.41 |
1.5 |
2.5 |
型號 |
轉速 |
流量Q |
揚程 |
效率 |
功率 |
必耐汽蝕餘量 |
||
軸功率 |
電機功率 |
|||||||
r/min |
m3/h |
L/s |
m |
% |
KW |
KW |
m |
|
IHF50-32-125 |
2900 |
8.8 12.5 16.3 |
2.44 3.47 4.53 |
21.5 20 17.5 |
45 54 53 |
1.15 1.26 1.47 |
2.2 |
3.0 |
IHF50-32-125A |
2900 |
8 11 14.5 |
2.22 3.05 4.03 |
17 16 14 |
42 52 51 |
0.88 0.92 1.08 |
1.5 |
3.0 |
IHF50-32-160 |
2900 |
8.8 12.5 16.3 |
1.08 1.56 2.06 |
33 32 30 |
41 48 47 |
1.93 2.27 2.84 |
4 |
3.0 |
IHF50-32-160A |
2900 |
8.2 11.7 15.2 |
2.28 3.25 4.22 |
29 28 26 |
39 47 46 |
1.16 1.88 2.34 |
3 |
3.0 |
IHF50-32-200 |
2900 |
8.8 12.5 16.3 |
2.44 3.47 4.53 |
52 50 48 |
34 42 41 |
3.7 4.1 5.2 |
7.5 |
3.0 |
IHF50-32-200A |
2900 |
8.2 11.7 15.2 |
2.28 3.25 4.22 |
45 44 42 |
31 40 39 |
3.24 3.5 4.45 |
5.5 |
3.0 |
IHF50-32-250 |
2900 |
8.8 12.5 16.3 |
1.08 1.56 2.06 |
82 80 76 |
27 35 34 |
7.3 7.8 10 |
11 |
3.0 |
IHF50-32-250A |
2900 |
8.2 11.7 15.2 |
2.28 3.25 4.22 |
71 70 68 |
25 34 33 |
4.53 6.56 8.52 |
7.5 |
3.0 |
型號 |
轉速 |
流量Q |
揚程 |
效率 |
功率 |
必耐汽蝕餘量 |
||
軸功率 |
電機功率 |
|||||||
r/min |
m3/h |
L/s |
m |
% |
KW |
KW |
m |
|
IHF65-50-125 |
2900 |
17.5 25 32 |
4.86 6.94 8.89 |
21.5 20 17.5 |
56 64 63 |
1.83 2.13 2.42 |
3 |
3.5 |
IHF65-50-125A |
2900 |
15.6 22.3 29 |
4.33 6.19 8.06 |
17 16 14 |
53 62 61 |
1.36 1.57 1.79 |
2.2 |
3.5 |
IHF65-50-160 |
2900 |
17.5 25 32 |
4.86 6.94 8.89 |
33 32 27.5 |
50 59 57 |
3.15 3.69 4.2 |
5.5 |
3.5 |
IHF65-50-160A |
2900 |
16.4 23.3 30.4 |
4.56 6.47 8.44 |
29 28 24 |
48 58 56 |
2.7 3.1 3.54 |
4 |
3.5 |
IHF65-40-200 |
2900 |
17.5 25 32 |
4.86 6.94 8.89 |
52 50 45.5 |
45 54 54 |
5.5 6.3 7.35 |
11 |
3.5 |
IHF65-40-200A |
2900 |
16.4 23.3 30.4 |
4.56 6.47 8.44 |
46 44 40 |
43 53 52 |
4.3 5 5.2 |
7.5 |
3.5 |
IHF65-40-250 |
2900 |
17.5 25 32 |
4.86 6.94 8.89 |
82 80 76 |
39 50 52 |
10.1 10.9 12.74 |
18.5 |
3.5 |
IHF65-40-250A |
2900 |
16.4 23.3 30.4 |
4.56 6.47 8.44 |
71 70 68 |
36 48 50 |
8.8 9.3 11.25 |
15 |
3.5 |
型號 |
轉速 |
流量Q |
揚程 |
效率 |
功率 |
必耐汽蝕餘量 |
||
軸功率 |
電機功率 |
|||||||
r/min |
m3/h |
L/s |
m |
% |
KW |
KW |
m |
|
IHF80-65-125 |
2900 |
35 50 65 |
9.72 13.89 18.06 |
21.5 20 17 |
64 69 67 |
3.2 3.95 4.5 |
5.5 |
4.0 |
IHF80-65-125A |
2900 |
31 45 58 |
31 45 58 |
17 16 14 |
62 68 67 |
2.3 2.88 3.3 |
4 |
4.0 |
IHF80-65-160 |
2900 |
35 50 65 |
9.72 13.89 18.06 |
33 32 27.5 |
60 68 67 |
5.24 6.41 7.27 |
11 |
4.0 |
IHF80-65-160A |
2900 |
31 45 58 |
31 45 58 |
29 28 24 |
58 67 66 |
4.3 5 5.2 |
7.5 |
4.0 |
IHF80-50-200 |
2900 |
35 50 65 |
9.72 13.89 18.06 |
52 50 48 |
52 64 65 |
9.53 10.64 12.39 |
15 |
4.0 |
IHF80-50-200A |
2900 |
31 45 58 |
31 45 58 |
46 44 40 |
50 63 62 |
7.35 8.56 10 |
11 |
4.0 |
IHF80-50-250 |
2900 |
35 50 65 |
9.72 13.89 18.06 |
82 80 72 |
40 50 51 |
19.4 21.8 25 |
30 |
4.0 |
IHF80-50-250A |
2900 |
31 45 58 |
31 45 58 |
71.5 70 63 |
39 50 51 |
15.4 17.6 19.9 |
22 |
4.0 |
型號 |
轉速 |
流量Q |
揚程 |
效率 |
功率 |
必耐汽蝕餘量 |
||
軸功率 |
電機功率 |
|||||||
r/min |
m3/h |
L/s |
m |
% |
KW |
KW |
m |
|
IHF100-80-125 |
2900 |
70 100 130 |
19.4 27.8 36.1 |
23 20 14 |
70 75 65 |
6.26 7.26 7.63 |
11 |
5.0 |
IHF100-80-125A |
2900 |
62.6 89 116 |
17.4 24.7 32.2 |
18 16 11 |
68 73 65 |
4.5 5.3 5.74 |
7.5 |
5.0 |
IHF100-80-160 |
2900 |
70 100 130 |
19.4 27.8 36.1 |
33 32 27.5 |
68 74 65 |
9.53 11.78 13.03 |
15 |
5.0 |
IHF100-80-160A |
2900 |
65.4 93.5 121 |
18.2 26 33.6 |
32 28 21 |
66 73 65 |
8.6 9.3 10.6 |
11 |
5.0 |
IHF100-65-200 |
2900 |
70 100 130 |
19.4 27.8 36.1 |
52 50 48 |
64 72 71 |
15.5 18.91 20.94 |
30 |
5.0 |
IHF100-65-200A |
2900 |
65.4 93.5 121 |
18.2 26 33.6 |
46 44 40 |
63 71 70 |
13 15.02 17.4 |
22 |
5.0 |
IHF100-65-250
|
2900 |
70 100 130 |
19.4 27.8 36.1 |
87 80 68 |
62 69 68 |
26.6 31.6 35 |
45 |
4.0 |
IHF100-65-250A |
2900 |
65.4 93.5 121 |
18.2 26 33.6 |
76.5 70 59 |
60 68 67 |
20.25 26.2 28 |
37 |
4.5 |
型號 |
轉速 |
流量Q |
揚程 |
效率 |
功率 |
必耐汽蝕餘量 |
||
軸功率 |
電機功率 |
|||||||
r/min |
m3/h |
L/s |
m |
% |
KW |
KW |
m |
|
IHF32-25-125 |
1450 |
1.75 2.5 3.25 |
0.49 0.69 0.9 |
5.25 5 4.5 |
37 40 38 |
0.068 0.085 0.105 |
0.75 |
2.3 |
IHF32-25-160 |
1450 |
1.75 2.5 3.25 |
0.49 0.69 0.9 |
8.25 8 7.5 |
30 38 40 |
0.131 0.143 0.166 |
0.75 |
2.3 |
IHF40-32-125 |
1450 |
2.2 3.25 4.15 |
0.6 0.9 1.15 |
5.25 5 4.5 |
37 41 40 |
0.085 0.108 0.127 |
0.75 |
2.5 |
IHF40-32-160 |
1450 |
2.2 2.5 3.25 |
0.6 0.9 1.15 |
8.25 8 7.5 |
33 36 37 |
0.14 0.15 0.18 |
0.75 |
2.5 |
型號 |
轉速 |
流量Q |
揚程 |
效率 |
功率 |
必耐汽蝕餘量 |
||
軸功率 |
電機功率 |
|||||||
r/min |
m3/h |
L/s |
m |
% |
KW |
KW |
m |
|
IHF50-32-125 |
1450 |
4.4 6.25 8.15 |
1.2 1.74 2.26 |
5.37 5 4.37 |
37 46 45 |
0.17 0.18 |
0.75 |
3.0 |
IHF50-32-160 |
1450 |
4.4 6.25 8.15 |
1.2 1.74 2.26 |
8.25 8 7.5 |
31 41 42 |
0.31 0.33 0.39 |
0.75 |
3.0 |
IHF50-32-200 |
1450 |
4.4 6.25 8.15 |
1.2 1.74 2.26 |
13 12.5 12 |
25 33 36 |
0.62 0.65 0.74 |
1.5 |
3.0 |
IHF50-32-250 |
1450 |
4.4 6.25 8.15 |
1.2 1.74 2.26 |
20.5 20 19 |
20 27 30 |
1.22 1.26 1.4 |
2.2 |
3.0 |
IHF65-50-125 |
1450 |
17.5 25 32 |
4.86 6.94 8.89 |
5.37 5 4.37 |
45 57 58 |
0.28 0.3 0.33 |
0.75 |
3.5 |
IHF65-50-160 |
1450 |
17.5 25 32 |
4.86 6.94 8.89 |
8.25 8 6.87 |
40 53 51 |
0.49 0.51 0.59 |
1.1 |
3.5 |
IHF65-40-200 |
1450 |
17.5 25 32 |
4.86 6.94 8.89 |
13 12.5 11.4 |
36 46 47 |
0.86 0.93 1.05 |
1.5 |
3.5 |
IHF65-40-250 |
1450 |
17.5 25 32 |
4.86 6.94 8.89 |
20.5 20 19 |
32 42 44 |
1.52 1.62 1.88 |
3 |
3.5 |
型號 |
轉速 |
流量Q |
揚程 |
效率 |
功率 |
必耐汽蝕餘量 |
||
軸功率 |
電機功率 |
|||||||
r/min |
m3/h |
L/s |
m |
% |
KW |
KW |
m |
|
IHF80-65-125 |
1450 |
17.5 25 32 |
4.86 6.94 8.89 |
5.37 5 4.25 |
54 64 62 |
0.47 0.53 0.61 |
1.1 |
4.0 |
IHF80-65-160 |
1450 |
17.5 25 32 |
4.86 6.94 8.89 |
8.25 8 7.5 |
50 62 61 |
0.78 0.88 1 |
1.5 |
4.0 |
IHF80-50-200 |
1450 |
17.5 25 32 |
4.86 6.94 8.89 |
13 12.5 11.38 |
51 59 58 |
1.21 1.44 1.74 |
3 |
4.0 |
IHF80-50-250 |
1450 |
17.5 25 32 |
4.86 6.94 8.89 |
20.5 20 18 |
40 50 51 |
2.4 2.7 3.12 |
4 |
4.0 |
IHF100-80-125 |
1450 |
35 50 65 |
9.72 13.89 18.06 |
5.75 5 3.5 |
65 70 64 |
0.85 0.97 0.98 |
1.5 |
4.5 |
IHF100-80-160 |
1450 |
35 50 65 |
9.72 13.89 18.06 |
8.5 8 6.5 |
60 68 67 |
1.35 1.6 1.69 |
2.2 |
4.5 |
IHF100-65-200 |
1450 |
35 50 65 |
9.72 13.89 18.06 |
13 12.5 10.5 |
60 68 63 |
2.06 2.5 2.95 |
4 |
4.5 |
IHF100-65-250 |
1450 |
35 50 65 |
9.72 13.89 18.06 |
21.2 20 18.5 |
58 63 62 |
3 4.3 4.72 |
5.5 |
4.5 |
型號 |
轉速 |
流量Q |
揚程 |
效率 |
功率 |
必耐汽蝕餘量 |
||
軸功率 |
電機功率 |
|||||||
r/min |
m3/h |
L/s |
m |
% |
KW |
KW |
m |
|
安裝與注意事項
1、IHF單級單吸氟塑料合金化工泵的安裝是否合理,對泵的正常運行與使用壽命有極其重要的影響,故安裝和校正必須仔細進行。
2、對照安裝尺寸預埋好底腳螺栓,做好混凝土基礎工作。
3、待基礎水泥凝固後,將泵安裝基礎上,應用水平儀檢查泵和電機軸的水平情況,如不水平,應用墊鐵調正直至水平,調妥後擰緊底腳螺母.
4、檢查泵的轉動部件是否有卡住擦碰現象,應嚴格檢查泵軸與電機的同軸度,可用薄片調整使其同心,然後用手轉動聯軸器,轉動輕鬆均勻無擦碰現象則為正常。
5、泵的吸入和吐出管路應有各自的支架,不允許管路的重量直接由泵來承受,以免把泵壓壞.
6、泵的安裝位置高於液麵(在泵的吸程允許範圍內)時,應在吸入管路端部安裝上底閥,並在排出管路上設置灌液螺孔或閥門,供泵起動前灌液之用;泵的安裝位置低於液麵時,應在吸入管路上按裝控製閥門和過濾裝置,以防止雜物吸入泵內,過濾麵積應大於管路麵積的3-4倍。
7、揚程高的泵在出口流量控製閥門的外端管路上還應安裝逆止閥,以防止突然停機時的水錘破壞。
8、必須保證泵的安裝高度符合泵的汽蝕餘量,並考慮管路損失及介質溫度。
運行與保養
泵的起動、運轉與停止
1. 泵起動前應將泵內灌滿加足輸送的液體,嚴禁無液起動。
2. 關閉出口閥門,接通電源後馬上檢查泵的轉向必須按泵的轉向箭頭一致,嚴禁逆向運轉,
3. 泵起動後達到正常轉速時,再逐漸打開出口閥門,並調節到所需要的工況投入運行。在吐出管路上的閥門關閉情況下,泵連續工作的時間不能超過3分鍾。
4. 停機時應先將出口的閥門關閉,然後再切斷電源。
維修與保養
1. 定期檢查泵和電機,更換易損零件。
2. 經常注意對軸承箱加注優質鈣基潤滑脂,以保下軸承良好的潤滑狀態。
3. 長期停機不使用時,除將泵內腐蝕性液體放淨外,更應注意各部件及泵內流道的清洗幹淨,並切斷電源。
4. 泵嚴禁空載運轉。
5. 介質中如含有固體顆粒時,應在泵入口處須加過濾器。
故障及排除
故障現象 |
原因分析 |
排除方法 |
泵不出液體 |
1.電機轉向不對 2.泵體內儲液不足 3.吸入管內有空氣漏入 |
1.調整轉向 2.重新加足液體 3.排除空氣體 |
泵不吸液體 |
1.底閥沒有打開或堵塞 2.吸程太高或吸入管路太長 3.吸入管路有雜物質堵塞 |
1.校正或更換底閥 2.降低吸程或縮短管路 3.清除堵塞雜物 |
泵流量不足 |
1.葉輪損壞 2.吸入或出口部分被堵塞 3.功率不足轉速太低 |
1.更換葉輪 2.清除堵塞雜物 3.檢查電機提高轉速 |
泵揚程不足 |
1.葉輪損壞 2.輸送介質內有空氣 3.轉速不夠 |
1.更換葉輪 2.重新灌注液體或排除空氣 3.檢查電機提高轉速 |
噪音或振動 |
1.泵軸與電機軸不同心 2.底腳螺母鬆動 3.吸程太高 |
1.校正泵與電機同軸度 2.擰緊底腳螺母 3.降低安裝高度 |
軸承溫升過高 |
1.軸承損壞 2.潤滑脂變質幹燥或缺少 |
1.更換 2.更換、加注潤滑脂 |
泵泄漏 |
1.機械密封件損壞 2.連接螺栓有鬆動現象 |
1.更換 2.擰緊各部位螺栓 |